BLUGLASS COMPLETES ACQUISITION OF SILICON VALLEY FAB

Highlights

  • BluGlass finalised acquisition of laser diode production facility lease and manufacturing equipment
  • Accelerates longer-term growth strategy, bringing key fabrication processes in-house
  • Acquisition funded by A$3.4 million Placement to institutional and sophisticated investors

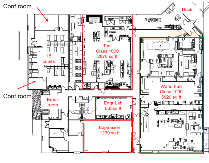
Australian semiconductor developer BluGlass Limited (ASX: BLG) is pleased to advise that it has completed its acquisition of a 19,000 sq ft purpose-built commercial laser diode production facility lease and manufacturing equipment in Silicon Valley for US$2.5 million. The purchase price comprised US$2 million cash and US$500,000 in new BluGlass shares at an issue price of A3.3 cents per share.

BluGlass will now commence moving into the facility and preparing its adaption for gallium nitride (GaN) laser diode production – a process expected to take several months.  The acquisition enables BluGlass to accelerate its longer-term growth strategy, bringing key fabrication processes in-house, to improve the quality and consistency of its GaN laser diodes.

Commenting on the acquisition, BluGlass’ President Jim Haden said, “Our newly acquired laser diode fab is game-changing for our growth trajectory. It allows us to significantly scale our manufacturing and revenue generation capacity, improve the quality and repeatability of our laser diodes expected by our customers, and fast-track development timelines for higher-value products at extended wavelengths. At the same time, it will eliminate supply chain complexity and halve our wafer production costs, paving the way for cash flow break-even.

“For continuity, we will continue to work with our contract manufacturers over the next year and remain on track to launch our first laser diodes in mid-2022. The opportunity to acquire a fully operational manufacturing fab, accompanying equipment, and skilled team is incredibly rare, particularly at a time when semiconductor demand is outstripping supply. Our own fab provides the foundation for our future growth and enables us to execute on our strategy to take market share within a high-margin, fast-growing market.”

The acquisition was funded by a A$3.4 million Placement to new and existing institutional investors. A non-renounceable 1:4 Entitlement Offer to raise up to a further $7.5 million for the ongoing operation of the production facility, additional capex for advanced manufacturing capabilities, and talent hire, is underway.

BluGlass logo
About BluGlass

Developing leading-edge semiconductor manufacturing technology and devices for more than a decade, BluGlass Limited (ASX:BLG) is a provider to the global GaN photonics industries, delivering cutting-edge, custom laser diode and LED development across the industrial, defence, display, and scientific markets.

Listed on the ASX, we are an Australian public company established to power the smarter, cleaner, more efficient photonics of tomorrow with our proprietary low temperature, low hydrogen, remote plasma chemical vapour deposition (RPCVD) manufacturing technology.

Backed by an extensive network of supply-chain partners, BluGlass is developing a suite of laser diode products, from small batch custom lasers through to high-volume and off the shelf products.

For more information, please contact:

Stefanie Winwood +61 2 9334 2300 swinwood@bluglass.com